Menu
Auszeichnungen Siegel 2023
Immobilien-Preisrechner

Modernes REH in Schöneiche bei Berlin: 5 Zi, Vollkeller, Süd-Terrasse, Garage

Jetzt exposé anfordern

Objektangaben

Exposé-Nr

SA2603

Objektart

Reihenendhaus

Ort

15566 Schöneiche bei Berlin

Kaufpreis

395.000,00 €

Provision

3,57% inkl. MwSt.

Grundstück

Nutzungsart

Wohnen

Erschließung

Erschlossen

Erschliessungsdetails

Abwasserkanalisation, Erdgas, Stadtwasser, Strom, Telefon

Flächen

Wohnfläche

ca. 130,00 m²

Kellerfläche

ca. 54,00 m²

Balkon/Terrasse Fläche

ca. 13,00 m²

Details

Wohneinheiten

1

Zimmer

5

Anzahl Badezimmer

1

Anzahl sep WC

1

Anzahl Terrassen

1

Zustand

Objektzustand

gepflegt

Qualität der Ausstattung

normal

Verfügbar ab

sofort

Ausstattung

Badezimmer

Ja

Gäste-WC

Ja

Keller

Ja

Abstellraum

Ja

Bakon / Terasse

Ja

Garten

Ja

Bodenbelag

Fliesen, Laminat, Teppichboden

Stellplatz

Stellplatztyp

Garage

Anzahl Parkplätze

1

Objektbeschreibung

Diese Immobilie wird Ihnen von Immozippel im qualifizierten Alleinauftrag angeboten.

Dieses gepflegte Reihenendhaus aus dem Jahr 1994 überzeugt mit einer soliden Bauweise in Stahlbeton-Fertigteilkonstruktion sowie einer durchdachten Raumaufteilung über mehrere Ebenen. Mit insgesamt fünf Zimmern und einer Vollunterkellerung bietet die Immobilie ausreichend Platz für Familien und vielseitige Nutzungsmöglichkeiten.

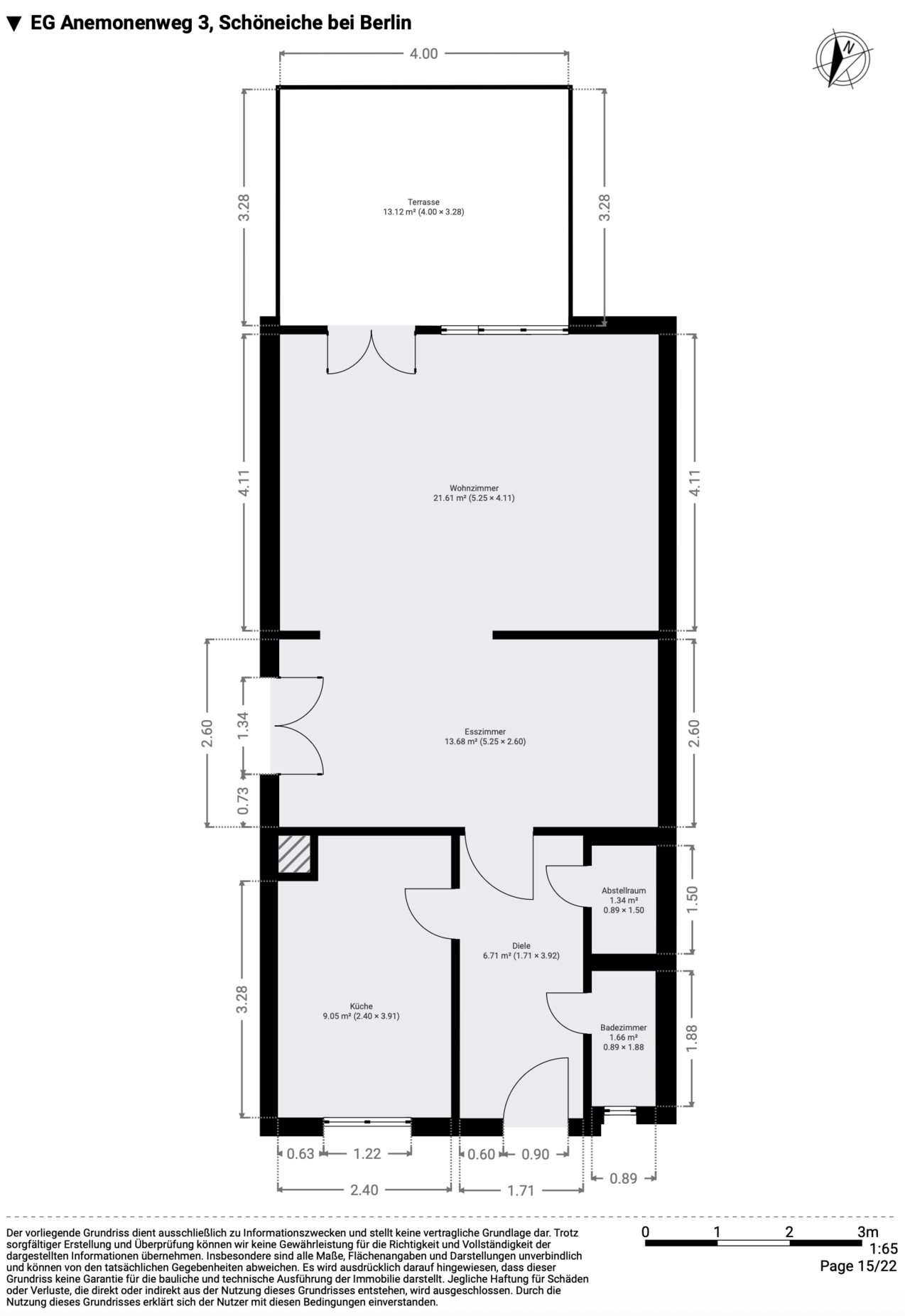
Im Erdgeschoss empfängt Sie eine geflieste Eingangsdiele, von der aus alle Räume bequem erreichbar sind. Hier befinden sich ein Gäste-WC sowie eine praktische Abstellkammer. Die separate Küche wird ohne Einbauküche übergeben und bietet somit Gestaltungsspielraum nach eigenen Vorstellungen. Das großzügige Wohn- und Esszimmer ist mit Laminat ausgestattet und bildet das Herzstück des Hauses. Von hier aus gelangen Sie direkt auf die sonnige, gepflasterte Südterrasse mit Überdachung – ein idealer Ort für entspannte Stunden im Freien.

Das Obergeschoss verfügt über einen Mittelflur mit textilem Bodenbelag. Neben einem geräumigen Schlafzimmer stehen ein Arbeitszimmer und ein Kinderzimmer zur Verfügung, die ebenfalls mit Laminat ausgestattet sind. Das Tageslichtbad ist gefliest und bietet eine Dusche, ein Waschbecken sowie ein WC.

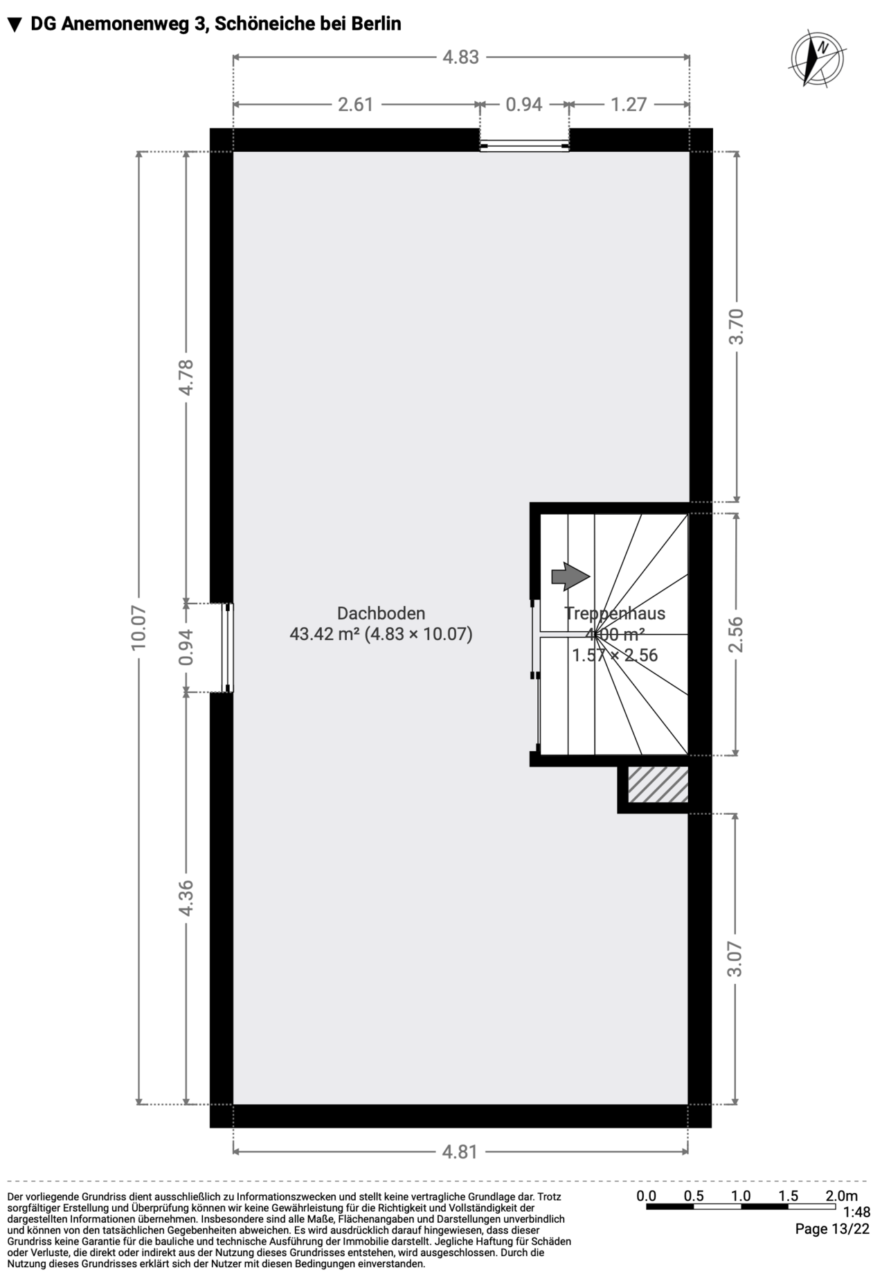
Im ausgebauten Dachgeschoss befindet sich ein großzügiges Dachstudio, das sich flexibel als Arbeits-, Gäste- oder Hobbybereich nutzen lässt.

Das Kellergeschoss bietet zusätzlichen Raum und Funktionalität. Über einen gefliesten Mittelflur erreichen Sie den Heizungsraum mit Waschmaschinenstellplatz, einen Hobbyraum sowie einen weiteren Lagerraum, die vielfältige Nutzungsmöglichkeiten eröffnen.

Das Grundstück verfügt über eine Garage mit Schwingtor. Die bereits erwähnte Südterrasse mit Überdachung rundet das Angebot ab und schafft zusätzlichen Wohnkomfort im Außenbereich.

Insgesamt präsentiert sich diese Immobilie als solides und funktional geschnittenes Zuhause mit viel Potenzial, ideal für Familien oder Paare mit Platzbedarf.

Ausstattung

Allgemein:
• Objektart: Reihenendhaus
• Baujahr: 1994
• Wohnfläche: ca. 130 qm
• Zimmer: 5
• Bauweise: massiv (Fertigteilbauweise aus Stahlbeton), vollunterkellert

Erdgeschoss:
• Eingangsdiele (gefliest)
• Gäste-WC (gefliest)
• Abstellkammer (gefliest)
• Küche ohne Einbauküche (gefliest)
• Wohn-/Esszimmer mit Laminatboden und Zugang zur Süd-Terrasse

Obergeschoss:
• Mittelflur (Textil)
• Großes Schlafzimmer (Laminat)
• 2 Kinderzimmer (Laminat)
• Tageslichtbad mit Dusche, WC und Waschbecken (gefliest)

Dachgeschoss:
• Ausgebautes Dachstudio vielseitig nutzbar, z. B. als Arbeits-, Gäste- oder Hobbyraum (Laminat)

Kellergeschoss:
• Mittelflur (gefliest)
• Heizungsraum
• Hobbyraum (gefliest)
• Lagerraum

Außenanlage:
• Gepflasterte Süd-Terrasse mit Überdachung
• Garage mit Schwingtor

Lage

Die Immobilie befindet sich in einer ruhigen Wohnlage im östlichen Teil von Schöneiche bei Berlin, unweit der Gemeinde Woltersdorf. Das Umfeld ist geprägt von gepflegten Einfamilien- und Reihenhäusern, grünen Straßen und einer familienfreundlichen Nachbarschaft. Die Umgebung bietet ein naturnahes Wohngefühl bei gleichzeitig sehr guter Anbindung an die Berliner Innenstadt.

In unmittelbarer Nähe befinden sich Einkaufsmöglichkeiten, Kindertagesstätten, Schulen, Ärzte und Freizeitangebote. Das Ortszentrum von Schöneiche ist in wenigen Minuten erreichbar und bietet alle wichtigen Einrichtungen des täglichen Bedarfs.

Die Verkehrsanbindung ist komfortabel: Über die Straßenbahnlinie 88 besteht eine direkte Verbindung zur S-Bahn in Berlin-Rahnsdorf, von dort aus gelangt man schnell ins Berliner Stadtzentrum. Auch die Autobahn A10 (Berliner Ring) ist nur wenige Fahrminuten entfernt.

Besonders reizvoll ist die Nähe zu den Woltersdorfer Seen. Der Kalksee, der Flakensee und der Löcknitzsee bieten vielfältige Möglichkeiten zur Erholung, zum Baden, Spazieren oder Wassersport. Entlang der Ufer und Waldwege lassen sich ausgedehnte Spaziergänge oder Fahrradtouren unternehmen.

Damit vereint die Lage die Vorteile einer ruhigen, grünen Umgebung mit einer hervorragenden Infrastruktur und schnellen Verbindungen nach Berlin – ein idealer Wohnort für Familien, die Natur und Stadtnähe gleichermaßen schätzen.

Sonstiges

Energieausweisangaben: liegt zur Besichtigung vor.

Erschließung auf im Haus:
• Strom
• Stadtwasser
• Abwasserkanalisation
• Erdgas
• Telefon

Hinweise:
Die Immobilie nach Vereinbarung übernommen werden.

Besichtigung:
Bitte fordern Sie im ersten Schritt das Exposé zur Immobilie an.
Im Exposé erhalten Sie die genaue Adresse, Flurkarte und Grundrisse.
Für einen Besichtigungstermin freuen wir uns auf Ihre telefonische Kontaktaufnahme unter
0152 - 343 555 44. Bei dieser Gelegenheit können wir Ihnen erste Fragen zur Immobilie beantworten.

Sie haben weitere Fragen?
E-Mail: info@immozippel.de
Mobil: 0152 - 343 555 44
Mo. - So. von 09:00 Uhr - 21:00 Uhr

Provisionshinweis:
Dieses Angebot ist für Sie als Käufer provisionspflichtig. Sollten Sie das Objekt erwerben, haben Sie an uns eine Maklerprovision in Höhe von 3,57 % des Kaufpreises inklusive Mehrwertsteuer zu zahlen. In gleicher Höhe werden wir auch vom Verkäufer vergütet (§ 656 c BGB).

Rechtshinweis:
Alle zum Objekt gemachten Angaben beruhen auf den Angaben Dritter. Der Makler übernimmt für deren Richtigkeit keine Gewährleistung. Dieses Exposé ist nur für Sie persönlich bestimmt. Eine Weitergabe an Dritte ist an unsere ausdrückliche Zustimmung gebunden und unterbindet nicht unseren Provisionsanspruch bei Zustandekommen eines Vertrages. Alle Gespräche sind über unser Büro zu führen. Bei Zuwiderhandlung behalten wir uns Schadenersatz bis zur Höhe der Provisionsansprüche ausdrücklich vor. Dieses Angebot ist freibleibend, Zwischenverkauf vorbehalten.

Wir weisen vorsorglich darauf hin, dass Käufer laut dem GEG-2020 zur Energieberatung verpflichtet sind. Für weitere Informationen sprechen Sie uns gerne an.

Ansprechpartner

B.A. Fabian Zippel
B.A. Fabian Zippel

Telefon: 030 / 55 15 67 03
Mobil: ‭0152 / 34 35 55 44‬
E-Mail: fabian@immozippel.de

Ihr Exposé

Fordern Sie jetzt unverbindlich Ihr Exposé an: