Menu
Auszeichnungen Siegel 2023
Immobilien-Preisrechner

ETW in Hohenschönhausen: 96 m², 4 Zimmer, Küche mit EBK, Kellerabteil, Fernwärme, Energieklasse B

Jetzt exposé anfordern

Objektangaben

Exposé-Nr

HG2633

Objektart

Dachgeschoss

Ort

13059 Berlin

Kaufpreis

350.000,00 €

Provision

3,57% inkl. MwSt.

Grundstück

Nutzungsart

Wohnen

Erschließung

Erschlossen

Erschliessungsdetails

Abwasserkanalisation, Fernwärme, Stadtwasser, Strom, Telefon

Flächen

Wohnfläche

ca. 96,77 m²

Details

Wohneinheiten

60

Etagenzahl

6

Etage

6. OG

Zimmer

4

Anzahl Badezimmer

1

Zustand

Objektzustand

gepflegt

Qualität der Ausstattung

normal

Verfügbar ab

Sofort

Ausstattung

Einbauküche

Ja

Badezimmer

Ja

Keller

Ja

Abstellraum

Ja

Bodenbelag

Fliesen, Teppichboden, Linoleum

Objektbeschreibung

Diese Immobilie wird Ihnen von immozippel.de im qualifizierten Alleinauftrag angeboten.

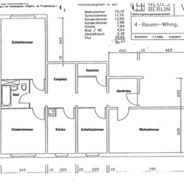
Diese gepflegte Eigentumswohnung im 6. Obergeschoss bietet mit ca. 96,77 m² Wohnfläche und vier gut nutzbaren Zimmern ein Raumkonzept, das im Alltag angenehm funktioniert. Bereits beim Eintreten fällt der großzügige Eingangsflur auf, der nicht nur Platz für eine Garderobe bietet, sondern der Wohnung auch eine offene und einladende Wirkung verleiht. Von hier aus erschließt sich die Wohnung auf klare und nachvollziehbare Weise. Der zentral angeordnete Essbereich verbindet die einzelnen Räume sinnvoll miteinander und schafft einen wohnlichen Mittelpunkt, der sich gut für das tägliche Leben ebenso wie für gemeinsame Mahlzeiten nutzen lässt. Da sich auf der Etage nur zwei Wohneinheiten befinden, entsteht zudem eine ruhige und überschaubare Wohnsituation.

Das Wohnzimmer präsentiert sich als angenehmer Aufenthaltsraum mit guter Größe und vielseitigen Stellmöglichkeiten. Ergänzt wird das Raumangebot durch ein separates Büro sowie ein weiteres Zimmer, das sich je nach Bedarf als Kinder-, Gäste- oder Arbeitszimmer einrichten lässt. Gerade diese flexible Aufteilung macht die Wohnung sowohl für Paare mit Platzbedarf als auch für Familien oder Käufer interessant, die Wohnen und Arbeiten unter einem Dach verbinden möchten. Das große Schlafzimmer bietet einen ruhigeren Rückzugsbereich, während die separate Küche mit Einbauküche funktional geschnitten ist und kurze Wege im Alltag ermöglicht. Eine Speisekammer ergänzt den Grundriss auf praktische Weise und schafft zusätzlichen Stauraum dort, wo er besonders nützlich ist.

Auch in den Ausstattungsdetails zeigt sich die Wohnung alltagstauglich und gepflegt. Das Bad ist gefliest und mit einer Dusch-Wannen-Kombination sowie einem Waschmaschinenstellplatz ausgestattet. Die Wohnungstür mit Einbruchschutz, das zugehörige Käfig-Kellerabteil und die insgesamt klare Grundrissstruktur unterstreichen den funktionalen Charakter des Angebots. Hinzu kommt, dass das Gebäude mit Energieeffizienzklasse B energetisch sehr ordentlich aufgestellt ist und über Fernwärme beheizt wird. Insgesamt handelt es sich um eine Wohnung mit solider Substanz, gut nutzbaren Flächen und einem Grundriss, der viele Lebenssituationen sinnvoll abbildet.

Ausstattung

Eckdaten
• Wohnfläche: ca. 96,77 m²
• Zimmer: 4
• Etage: 6. Obergeschoss
• Aufzug: nein
• Energieeffizienzklasse: B

Raumaufteilung
• Eingangsflur mit Garderobenbereich
• Wohnzimmer
• Essbereich (zentral)
• Küche (separat)
• Arbeits-/Bürozimmer
• Kinder-/Gästezimmer (flexibel nutzbar)
• Großes Schlafzimmer
• Speisekammer / Abstellraum

Küche
• Einbauküche vorhanden
• Linoleumboden

Bad
• gefliest
• Dusch-Wannen-Kombination
• Waschmaschinenstellplatz

Böden:
• Fliesen (Bad)
• Textilboden/Teppich (u. a. Flur und Schlafzimmer)
• Linoleum (Küche)

Sicherheit & Stauraum
• Wohnungstür mit Einbruchschutz
• Käfig-Kellerabteil

Gemeinschaftsflächen (je nach Hausordnung)
• Fahrradraum
• Trocknungsraum
• Innenhof / gemeinschaftliche Außenbereiche

Lage

Die Grevesmühlener Straße liegt in Berlin-Hohenschönhausen in einem Wohnumfeld, das durch eine gute Nahversorgung und kurze Wege im Alltag überzeugt. Einkaufsmöglichkeiten, Supermärkte, Bäckereien, Apotheken, Arztpraxen sowie Kitas und Schulen sind im Umfeld gut erreichbar und machen den Standort besonders angenehm für Menschen, die Wert auf eine praktische und verlässliche Infrastruktur legen. Gleichzeitig prägen gewachsene Wohnquartiere, begrünte Bereiche und eine ruhige Nachbarschaft das direkte Umfeld.

Auch die Verkehrsanbindung ist ein wichtiger Pluspunkt der Lage. Über Tram- und Buslinien ist Hohenschönhausen gut an die umliegenden Stadtteile und an das Berliner S-Bahn-Netz angebunden. So lassen sich sowohl die Berliner Innenstadt als auch wichtige Arbeitsstandorte gut erreichen. Mit dem Auto bestehen zudem zügige Verbindungen in Richtung Innenstadt, zum Berliner Ring und in das nördliche Umland, was die Lage auch für Pendler interessant macht.

Für die Freizeit bietet die Umgebung eine angenehme Mischung aus städtischem Alltag und Erholungsmöglichkeiten. Parks, Grünflächen und nahegelegene Seen laden zu Spaziergängen, sportlichen Aktivitäten und entspannten Stunden im Freien ein.

Sonstiges

Energieausweisangaben:
• Energieausweisart: Verbrauchsausweis
• Energieverbrauch: 66,8 kWh/(m² a)
• Energieklasse: B
• Wesentlicher Energieträger: Fernwärme
• Baujahr lt. Energieausweis: 1987
• Gültig bis: 17.10.2028
• Energieverbrauch Warmwasser ist enthalten

Erschließung auf im Haus:
• Strom
• Stadtwasser
• Abwasserkanalisation
• Fernwärme
• Telefon

Hinweise:
Die Immobilie sofort übernommen werden.

Besichtigung:
Bitte fordern Sie im ersten Schritt das Exposé zur Immobilie an.
Im Exposé erhalten Sie die genaue Adresse, Flurkarte und Grundrisse.
Für einen Besichtigungstermin freuen wir uns auf Ihre telefonische Kontaktaufnahme unter 0152 -343 555 44. Bei dieser Gelegenheit können wir Ihnen erste Fragen zur Immobilie beantworten.

Sie haben weitere Fragen?
E-Mail: fabian@immozippel.de
Mobil: 0152 - 343 555 44
Mo. - So. von 09:00 Uhr - 21:00 Uhr

Provisionshinweis:
Dieses Angebot ist für Sie als Käufer provisionspflichtig. Sollten Sie das Objekt erwerben, haben Sie an uns eine Maklerprovision in Höhe von 3,57 % des Kaufpreises inklusive Mehrwertsteuer zu zahlen. In gleicher Höhe werden wir auch vom Verkäufer vergütet (§ 656 c BGB).

Rechtshinweis:
Alle zum Objekt gemachten Angaben beruhen auf den Angaben Dritter. Der Makler übernimmt für deren Richtigkeit keine Gewährleistung. Dieses Exposé ist nur für Sie persönlich bestimmt. Eine Weitergabe an Dritte ist an unsere ausdrückliche Zustimmung gebunden und unterbindet nicht unseren Provisionsanspruch bei Zustandekommen eines Vertrages. Alle Gespräche sind über unser Büro zu führen. Bei Zuwiderhandlung behalten wir uns Schadenersatz bis zur Höhe der Provisionsansprüche ausdrücklich vor. Dieses Angebot ist freibleibend, Zwischenverkauf vorbehalten.

Wir weisen vorsorglich darauf hin, dass Käufer laut dem GEG-2020 zur Energieberatung verpflichtet sind. Für weitere Informationen sprechen Sie uns gerne an.

Ansprechpartner

B.A. Fabian Zippel
B.A. Fabian Zippel

Telefon: 030 / 55 15 67 03
Mobil: ‭0152 / 34 35 55 44‬
E-Mail: fabian@immozippel.de

Ihr Exposé

Fordern Sie jetzt unverbindlich Ihr Exposé an: