Menu
Auszeichnungen Siegel 2023
Immobilien-Preisrechner

Natur pur in der Uckermark: Charmantes Landhaus-EFH mit Garten, Kaminofen & Garage

Jetzt exposé anfordern

Objektangaben

Exposé-Nr

MG2623

Objektart

Einfamilienhaus

Ort

17268 Milmersdorf

Kaufpreis

220.000,00 €

Provision

3,57% inkl. MwSt.

Grundstück

Nutzungsart

Wohnen

Erschließung

Erschlossen

Erschliessungsdetails

Abwasserkanalisation, Erdgastank, Stadtwasser, Strom, Telefon

Flächen

Wohnfläche

ca. 100,00 m²

Details

Etagenzahl

2

Zimmer

3

Anzahl Schlafzimmer

2

Anzahl Badezimmer

1

Anzahl Terrassen

1

Zustand

Objektzustand

gepflegt

Qualität der Ausstattung

normal

Verfügbar ab

Nach Vereinbarung

Ausstattung

Einbauküche

Ja

Badezimmer

Ja

Keller

Ja

Bakon / Terasse

Ja

Garten

Ja

Kamin

Ja

Bodenbelag

PVC, Fliesen, Laminat

Stellplatz

Stellplatztyp

Garage

Objektbeschreibung

Diese Immobilie wird Ihnen von immozippel.de im qualifizierten Alleinauftrag angeboten.

Dieses Einfamilienhaus aus den frühen 1950er-Jahren liegt ruhig und großzügig eingebettet in einen gepflegten Garten und freiem Blick ins Grüne. Der weiße Putzbau mit dunklem Satteldach vermittelt auf Anhieb den Charme eines gewachsenen Landhauses.

Eine verglaste Eingangsveranda führt in den zentralen Flur, von dem aus sich alle Räume bequem erschließen. Das geflieste Bad mit Eckbadewanne, Dusche und WC liegt direkt angebunden, ebenso die funktionale Einbauküche mit angrenzendem Essbereich. Der Wohn-Essbereich überzeugt mit Laminatboden, sichtbaren Holzbalken und einem Kaminofen als warmem Mittelpunkt. Große Fenstertüren öffnen den Raum direkt zur gepflasterten Terrasse und in den Garten.

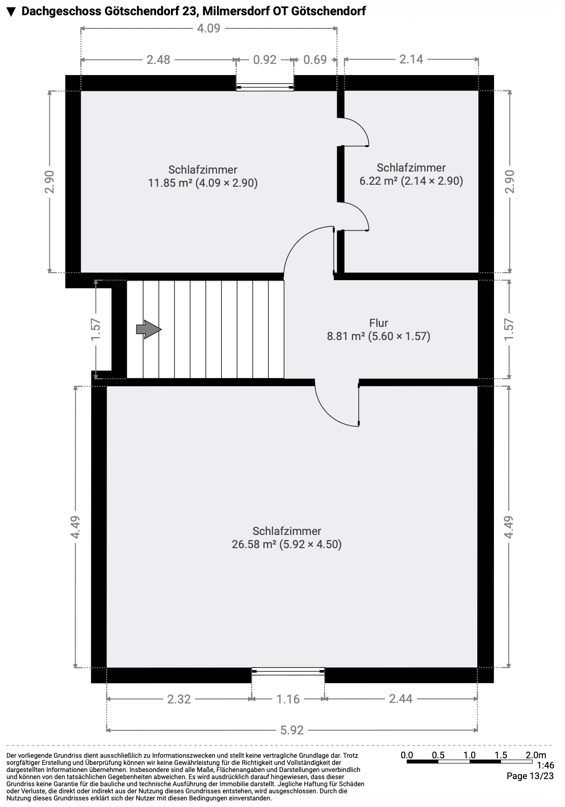
Über eine geschlossene Holztreppe erreichen Sie zwei Schlafzimmer mit charakteristischen Dachschrägen und sichtbarer Holzbalkendecke im Dachgeschoss. Beide Zimmer sind ruhig geschnitten und bieten eine geborgene Atmosphäre, die dem Haus seinen unverwechselbaren, behaglichen Charakter verleiht.

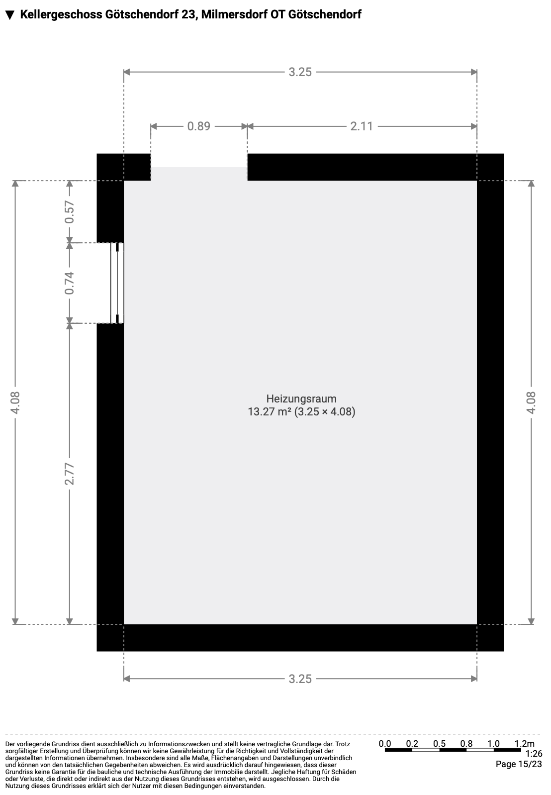
Die Teilunterkellerung beherbergt den Heizungsraum, die Hausanschlüsse sowie einen Waschmaschinenstellplatz.

Ein Nebengebäude aus dem Jahr 2014 bietet zwei separate Lagerräume sowie eine geräumige Einzelgarage mit manuellem Schwingtor, vielseitig nutzbar für Hobby, Werkstatt oder Lagerung. Die Versorgung erfolgt über Strom, Stadtwasser, Kanalisation und Flüssiggas; Glasfaser ist in der Straße bereits verlegt. Ein Brunnen sowie zwei Gartenwasseranschlüsse runden das Angebot ab.

Ausstattung

Allgemein:
- Einfamilienhaus, Baujahr ca. 1950
- Wohnfläche ca. 100 m²
- Grundstücksfläche ca. 890 m²
- 3 Zimmer, Küche, Bad
- Teilunterkellerung
- Erschließung: Strom, Stadtwasser, Kanalisation, Flüssiggas, Telefon
- Glasfaser in der Straße verfügbar

Erdgeschoss
- Verglaste Eingangsveranda (PVC)
- Wohn-Esszimmer mit Laminatboden und sichtbaren Holzbalken, Kaminofen und Fenstertüren zur Terrasse
- Küche mit Einbauküche (gefliest)
- Bad: Eckbadewanne, Dusche, WC, gefliest

Dachgeschoss
- 2 Schlafzimmer mit Dachschräge und sichtbarer Holzbalkendecke (Laminat)
- Kleines Schlafzimmer mit Einbauschrank
- Holztreppe zum EG

Untergeschoss
- Heizungsraum mit Hausanschlüssen
- Waschmaschinenstellplatz

Heizung & Warmwasser
- Flüssiggasheizung
- Warmwasserbereitung ebenfalls über Flüssiggas
- Kaminofen als ergänzende Wärmequelle

Nebengebäude (Bj. 2014)
- 2 separate Lagerräume
- Einzelgarage mit manuellem Schwingtor

Außenanlage
- Grundstück ca. 890 m² mit Rasen, Hecken und Gehölzen
- Gepflasterte Terrasse
- Eingezäunter Vorgarten mit Tor
- Brunnen mit Pumpe
- 2 Gartenwasseranschlüsse

Lage

Götschendorf, ein Ortsteil der Gemeinde Milmersdorf in der Uckermark, liegt inmitten des Biosphärenreservats Schorfheide-Chorin – einem der größten zusammenhängenden Waldgebiete Mitteleuropas und UNESCO-anerkanntes Schutzgebiet von außergewöhnlicher ökologischer Bedeutung. Diese besondere Lage verleiht dem Ort einen naturräumlichen Charakter, der in dieser Qualität selten ist: weitläufige Wälder, glasklare Seen und eine Stille, die echte Erholung ermöglicht.

Die Grundversorgung für den Alltag ist unmittelbar vor Ort gewährleistet. In Milmersdorf selbst finden sich Einkaufsmöglichkeiten für den täglichen Bedarf, sodass kurze Wege Teil des gelebten Alltags sind. Für ein erweitertes Angebot – Schulen, Ärzte, Apotheken, Einzelhandel und Gastronomie – ist die Kurstadt Templin in wenigen Minuten erreichbar. Templin, bekannt für seine mittelalterliche Stadtmauer und das beliebte Templin-Freibad, erweitert das Freizeitangebot und gibt der Region ein attraktives Zentrum. Prenzlau ergänzt als weitere Kreisstadt das Versorgungsangebot im weiteren Umkreis.

Die Anbindung ist für eine ländliche Lage gut organisiert. Über die Bundesstraßen der Region sowie die Nähe zur Autobahn A11 sind sowohl Berlin als auch die Ostseeregion bequem mit dem Auto erreichbar. Bahnhöfe in Templin oder Angermünde ermöglichen zusätzlich eine Anbindung an den regionalen Bahnverkehr – ideal für Pendler oder spontane Ausflüge. Die Kombination aus Erreichbarkeit und echtem Rückzugsort macht den Standort sowohl für den Erstwohnsitz als auch für Wochenendpendler interessant.

Die Freizeitmöglichkeiten der Umgebung sind vielfältig und außergewöhnlich. Das Biosphärenreservat lädt zu ausgedehnten Wanderungen, Radtouren und Wassersport auf den umliegenden Seen ein. Wer die Natur aktiv erleben möchte, findet hier ein Angebot, das weit über das hinausgeht, was gewöhnliche ländliche Lagen bieten. Götschendorf eignet sich damit besonders für Käufer, die Wert auf eine naturnahe, entspannte Umgebung legen – ohne auf eine funktionierende Infrastruktur und gute Erreichbarkeit verzichten zu müssen.

Sonstiges

Energieausweisangaben:
• Energieausweisart: Verbrauchsausweis
• Energieverbrauch: 137,4 kWh/(m²·a)
• Energieklasse: E
• Wesentlicher Energieträger: Flüssiggas
• Baujahr lt. Energieausweis: 1950
• Gültig bis: 19.04.2036
• Energieverbrauch Warmwasser ist enthalten

Erschließung im Haus:
• Strom
• Stadtwasser
• Abwasserkanalisation
• Flüssiggas
• Telefon

Erschließung in der unbefestigten Straße:
• Glasfaser

Hinweise:
Die Immobilie kann kurzfristig übernommen werden.

Besichtigung:
Bitte fordern Sie im ersten Schritt das Exposé zur Immobilie an.
Im Exposé erhalten Sie die genaue Adresse, Flurkarte und Grundrisse.
Für einen Besichtigungstermin freuen wir uns auf Ihre telefonische Kontaktaufnahme unter
0152 343 555 44. Bei dieser Gelegenheit können wir Ihnen erste Fragen zur Immobilie beantworten.

Sie haben weitere Fragen?
E-Mail: fabian@immozippel.de
Mobil: 0152 - 343 555 44
Mo. - Sa. von 09:00 Uhr - 21:00 Uhr

Provisionshinweis:
Dieses Angebot ist für Sie als Käufer provisionspflichtig. Sollten Sie das Objekt erwerben, haben Sie an uns eine Maklerprovision in Höhe von 3,57 % des Kaufpreises inklusive Mehrwertsteuer zu zahlen.
In gleicher Höhe werden wir auch vom Verkäufer vergütet (§ 656 c BGB).

Rechtshinweis:
Alle zum Objekt gemachten Angaben beruhen auf den Angaben Dritter. Der Makler übernimmt für deren Richtigkeit keine Gewährleistung. Dieses Exposé ist nur für Sie persönlich bestimmt. Eine Weitergabe an Dritte ist an unsere ausdrückliche Zustimmung gebunden und unterbindet nicht unseren Provisionsanspruch bei Zustandekommen eines Vertrages. Alle Gespräche sind über unser Büro zu führen. Bei Zuwiderhandlung behalten wir uns Schadenersatz bis zur Höhe der Provisionsansprüche ausdrücklich vor. Dieses Angebot ist freibleibend, Zwischenverkauf vorbehalten.

Wir weisen vorsorglich darauf hin, dass Käufer laut dem GEG-2020 zur Energieberatung verpflichtet sind. Für weitere Informationen sprechen Sie uns gerne an.

Ansprechpartner

B.A. Fabian Zippel
B.A. Fabian Zippel

Telefon: 030 / 55 15 67 03
Mobil: ‭0152 / 34 35 55 44‬
E-Mail: fabian@immozippel.de

Ihr Exposé

Fordern Sie jetzt unverbindlich Ihr Exposé an: