Menu
Auszeichnungen Siegel 2023
Immobilien-Preisrechner

Modernes EFH in Am Mellensee: 803 m² Grst, 148m² Wfl, 4Zi, blickdichter Garten, Terrasse, Kamin

Jetzt exposé anfordern

Objektangaben

Exposé-Nr

MA2502

Objektart

Einfamilienhaus

Ort

15838 Am Mellensee

Kaufpreis

450.000,00 €

Provision

3,57% inkl. MwSt.

Grundstück

Nutzungsart

Wohnen

Erschließung

Erschlossen

Erschliessungsdetails

Abwasserkanalisation, Erdgas, Glasfaseranschluss, Stadtwasser, Strom, Telefon

Flächen

Wohnfläche

ca. 148,24 m²

Details

Zimmer

4

Anzahl Badezimmer

1

Zustand

Objektzustand

gepflegt

Qualität der Ausstattung

normal

Verfügbar ab

Nach Vereinbarung

Ausstattung

Einbauküche

Ja

Badezimmer

Ja

Gäste-WC

Ja

Abstellraum

Ja

Bakon / Terasse

Ja

Garten

Ja

Pool

Ja

Kamin

Ja

Bodenbelag

Laminat, Fliesen

Energieausweis

Energieausweis

liegt vor

Energieausweistyp

Verbrauchsausweis

Energie-Verbrauchs-Kennwert

101,5 kWh/(m²*a)

Energie-Effizienz-Klasse

D

Baujahr

2001

Baujahr Anlagentechnik

2001

Wesentlicher Energieträger

Gas

Heizungsart

Zentralheizung

Mit Warmwasser

ja

Gültig bis

10.09.2035

Endenergieverbrauch:101,5 kWh/(m²*a)
A+
A
B
C
D
E
F
G
H
0
25
50
75
100
125
150
175
200
225
250+

Objektbeschreibung

Die Immobilie wird Ihnen von immozippel.de im qualifizierten Alleinauftrag angeboten.

Dieses Einfamilienhaus wurde im Jahr 2001 in massiver Porenbetonbauweise errichtet und befindet sich in ruhiger Wohnlage in der Ortschaft Am Mellensee. Das 803 m² große Grundstück bietet einen gepflegten Garten mit gewachsenem Grün und angenehmer Privatsphäre. Die Wohnfläche von rund 148 m² verteilt sich auf zwei Etagen und überzeugt durch einen klaren, funktionalen Grundriss mit gut nutzbaren Räumen und viel Tageslicht.

Im Erdgeschoss empfängt eine Diele, von der aus sich die Wohnbereiche erschließen. Das Wohn- und Esszimmer ist großzügig geschnitten und durch die Fensterfront sowie den Zugang zur Terrasse angenehm hell. Der Raum bietet Platz für Wohnen, Essen und gesellige Stunden. Terrakottafliesen im Erdgeschoss unterstützen die pflegeleichte Nutzung. Die Einbauküche verfügt über einen praktischen Sitzbereich sowie Fenster und ist direkt an den Hauswirtschaftsraum angebunden. Hier befindet sich die Gaszentralheizung (Baujahr 2001) sowie ein weiterer Ausgang in den Garten. Ergänzt wird das Erdgeschoss durch ein Gäste-WC mit Waschbecken und Stellmöglichkeit für Waschmaschine und Trockner. Eine offene Holztreppe führt in das Dachgeschoss.

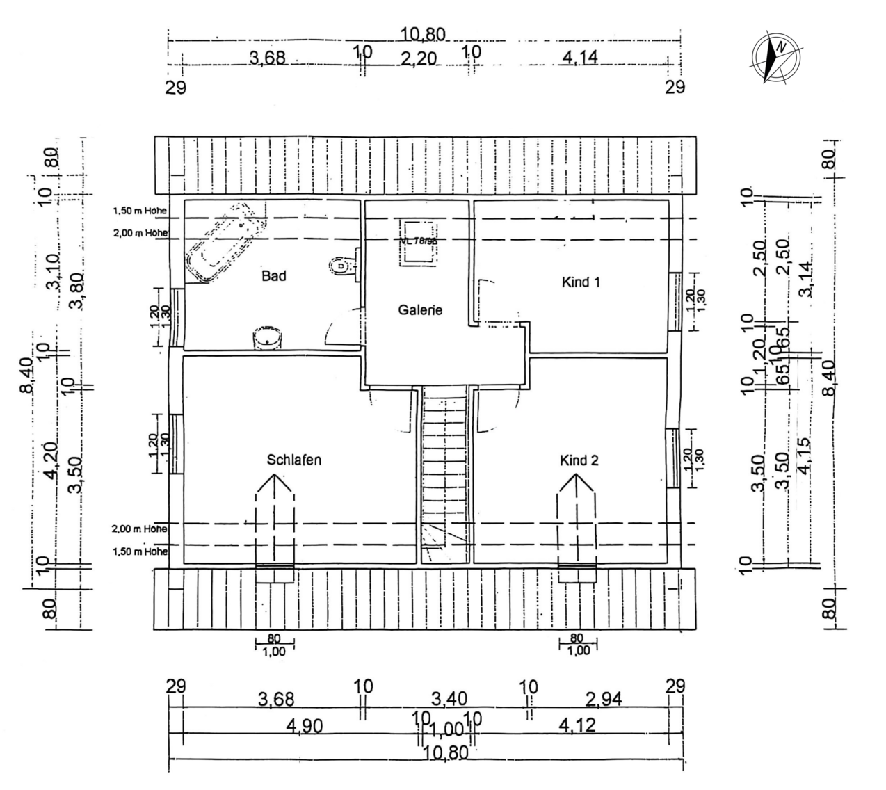
Das Dachgeschoss bietet eine helle Galerie mit Dachfenster, die sich als kleine Arbeitsecke oder Leseplatz eignet. Drei Zimmer stehen hier zur Verfügung – nutzbar als Schlafzimmer, Kinderzimmer, Gäste- oder Arbeitsraum. Dachschrägen schaffen ein wohnliches Ambiente, ohne den Raum zu sehr einzuschränken. Das großzügige Bad ist mit Badewanne und separater Dusche ausgestattet und wird durch helle Fliesen und zwei Fenster gut belichtet und belüftet.

Zum technischen Ausstattungsumfang zählen neben der Gasheizung und klassischen Heizkörpern eine städtische Wasser- und Abwasseranbindung, Glasfaseranschluss sowie Sicherheitsriegel an den Fenstern im Erdgeschoss. Für die Gartenbewässerung steht zusätzlich ein Brunnen mit Pumpe zur Verfügung.

Der Außenbereich bietet verschiedene Nutzungsmöglichkeiten – von ruhiger Erholung im Grünen bis zu Spiel- und Aufenthaltsflächen. Eine Terrasse aus Pflasterstein lädt in der warmen Jahreszeit zum Aufenthalt im Freien ein. Der Garten ist vollständig eingefriedet und verfügt über Rasenflächen, Beete, einen Obstbaum und einen Holzschuppen für Geräte oder Gartenmaterial. Naturliebhaber profitieren von der Lage unmittelbar gegenüber weitläufiger Wiesen und der fußläufig erreichbaren Uferzone des Mellensees.

Das Haus eignet sich zur Eigennutzung für Paare oder Familien, bietet aber ebenso Raum für Homeoffice und Gäste. Der klare Grundriss, die ruhige Wohnlage und die gute Nutzbarkeit der Innen- und Außenbereiche machen diese Immobilie zu einem ausgewogenen Wohnangebot in naturnaher Umgebung.

Ausstattung

Allgemein:
• Einfamilienhaus (EFH) in Am Mellensee, Ahornweg
• Baujahr ca. 2001 (massive Bauweise – Porenbeton)
• Wohnfläche geschätzt: ca. 148 m²
• Grundstück 803 m² groß
• Ruhige Wohnlage in privater Anliegerstraße
• Helle Räume mit guter Belichtung
• Offener, praktischer Grundriss

Erdgeschoss
• Eingangsbereich / Diele
• Großes Wohn- & Esszimmer mit Fensterfront & Terrassenzugang
• Terrakottafliesen im Wohnbereich (pflegeleicht)
• Einbauküche mit Sitzbereich, Geräten & Fenster
• Hauswirtschaftsraum mit Heizungsanlage & direktem Gartenzugang
• Gäste-WC mit Waschbecken & Waschmaschinenstellplatz
• Offene Holztreppe ins Dachgeschoss

Dachgeschoss:
• Helle Galerie mit Dachfenster und Platz für eine Arbeitsecke
• 3 Zimmer (Schlafzimmer + Kinderzimmer + Arbeits/Gästezimmer)
• Dachschrägen im DG, dennoch gute Stellflächen
• Laminat in den Wohn-/Schlafräumen
• Großes Masterbad mit Dusche & Badewanne, WC, Waschtisch, Ablageflächen & Fliesen hell

Haustechnik:
• Gaszentralheizung im HWR (Baujahr 2001)
• Heizkörper in allen Wohnräumen & Bädern
• Wasser/Abwasser städtisch, Strom vorhanden
• Glasfaser & Telefonanschluss
• Sicherheitsriegel an EG-Fenstern
• Brunnen mit Pumpe zur Gartenbewässerung

Ausstattung:
• Kamin im Wohnbereich
• Helle Fliesen im EG & Bad
• Laminat im DG (Schlaf-/Kinder-/Büro)
• Einbauküche inklusive Geräte
• Großzügige Badewanne + separate Duschkabine
• Große Fensterflächen, teilweise bodentief
• Gute Raumaufteilung für Familie & Büroarbeit

Außenanlage
• Eingewachsener Garten mit viel Grün
• Rasenflächen & Obstbaum (z. B. Kirsche)
• Terrasse mit Pflastersteinbelag
• Holz-Gartenschuppen für Geräte/Material
• Grundstück vollständig eingefriedet
• Blumenbeete, Sträucher, Hecken – sehr privat
• Naturwiesen gegenüber, Mellensee fußläufig erreichbar

Lage

Am Mellensee liegt im Süden des Landkreises Teltow-Fläming und ist besonders für seine naturnahe Wohnqualität bekannt. Die Umgebung wird geprägt von Seen, Wäldern und ausgedehnten Wiesenflächen, die zu einem ruhigen Wohnumfeld beitragen. Zugleich bestehen im Ort selbst Möglichkeiten des täglichen Bedarfs, darunter Einkaufsmöglichkeiten, Gastronomie, Kitas sowie medizinische Versorgung im näheren Umfeld. Schulen befinden sich in den Ortszentren der umliegenden Gemeinden und sind gut erreichbar.

Die Verkehrsanbindung erfolgt über die Bundesstraße B96 sowie die Regionalbahnverbindung in Zossen, wodurch Berlin, Dresden oder Potsdam in angemessener Zeit zu erreichen sind. Für Pendler entsteht damit eine gute Balance zwischen ruhigem Wohnen im Grünen und der Anbindung an städtische Arbeits- und Versorgungszentren. Auch der öffentliche Nahverkehr verbindet Mellensee mit den umliegenden Ortschaften und erleichtert alltägliche Wege.

Freizeit und Erholung haben in der Region einen hohen Stellenwert. Der Mellensee selbst bietet Möglichkeiten zum Baden, Angeln sowie für Wassersport und Spaziergänge entlang des Ufers. Rad- und Wanderwege durch Wälder und offene Landschaften laden zu Ausflügen ein. Ergänzend gibt es im Umfeld Vereine, sportliche Angebote und saisonale Veranstaltungen, die das Leben vor Ort angenehm strukturieren und für Abwechslung sorgen.

Sonstiges

Energieausweisangaben:
• Energieausweisart: Verbrauchsausweis
• Energieverbrauch: 101,5 kWh/(m² a)
• Energieklasse: D
• Wesentlicher Energieträger: Erdgas
• Baujahr lt. Energieausweis: 2001
• Gültig bis: 10.09.2035
• Energieverbrauch Warmwasser ist enthalten

Erschließung im Haus:
• Strom
• Stadtwasser
• Abwasserkanalisation
• Erdgas
• Telefon
• Glasfaser

Hinweise:
Die Immobilie kann nach Vereinbarung übernommen werden.

Besichtigung:
Bitte fordern Sie im ersten Schritt das Exposé zur Immobilie an.
Im Exposé erhalten Sie die genaue Adresse, Flurkarte und Grundrisse.
Für einen Besichtigungstermin freuen wir uns auf Ihre telefonische Kontaktaufnahme unter 0152 / 343 555 44. Bei dieser Gelegenheit können wir Ihnen erste Fragen zur Immobilie beantworten.

Sie haben weitere Fragen?
E-Mail: info@immozippel.de
Mobil: 0152 / 343 555 44
Mo. - So. von 09:00 Uhr - 21:00 Uhr

Provisionshinweis:
Dieses Angebot ist für Sie als Käufer provisionspflichtig. Sollten Sie das Objekt erwerben, haben Sie an uns eine Maklerprovision in Höhe von
3,57 % des Kaufpreises inklusive Mehrwertsteuer zu zahlen. In gleicher Höhe werden wir auch vom Verkäufer vergütet (§ 656 c BGB).

Rechtshinweis:
Alle zum Objekt gemachten Angaben beruhen auf den Angaben Dritter. Der Makler übernimmt für deren Richtigkeit keine Gewährleistung. Dieses Exposé ist nur für Sie persönlich bestimmt. Eine Weitergabe an Dritte ist an unsere ausdrückliche Zustimmung gebunden und unterbindet nicht unseren Provisionsanspruch bei Zustandekommen eines Vertrages. Alle Gespräche sind über unser Büro zu führen. Bei Zuwiderhandlung behalten wir uns Schadenersatz bis zur Höhe der Provisionsansprüche ausdrücklich vor. Dieses Angebot ist freibleibend, Zwischenverkauf vorbehalten.

Wir weisen vorsorglich darauf hin, dass Käufer laut dem GEG-2020 zur Energieberatung verpflichtet sind. Für weitere Informationen sprechen Sie uns gerne an.

Ansprechpartner

Juliane Ernst
Juliane Ernst

Telefon: 030 / 55 15 67 03
Mobil: ‭0173 / 7434607‬
E-Mail: juliane@immozippel.de

Ihr Exposé

Fordern Sie jetzt unverbindlich Ihr Exposé an: