Menu
Auszeichnungen Siegel 2023
Immobilien-Preisrechner

Notartermin geplant: Einfamilienhaus zur Modernisierung in Ladeburg: 5Zi, 124m² Wfl, 1083 m² Grst., großes Kellergeschoss

Jetzt exposé anfordern

Objektangaben

Exposé-Nr

LA2530

Objektart

Einfamilienhaus

Ort

16321 Ladeburg

Kaufpreis

-

Provision

-

Grundstück

Nutzungsart

Wohnen

Erschließung

Erschlossen

Erschliessungsdetails

Abwasserkanalisation, Erdgas, Stadtwasser, Strom, Telefon

Flächen

Wohnfläche

ca. 124,00 m²

Kellerfläche

ca. 82,00 m²

Details

Zimmer

5

Anzahl Badezimmer

1

Anzahl sep WC

1

Zustand

Objektzustand

sanierungsbedürftig

Qualität der Ausstattung

einfach

Verfügbar ab

-

Ausstattung

Einbauküche

Ja

Keller

Ja

Abstellraum

Ja

Garten

Ja

Bodenbelag

Fliesen, Teppichboden, PVC

Stellplatz

Stellplatztyp

Garage

Anzahl Parkplätze

1

Objektbeschreibung

Diese Immobilie wird Ihnen von immozippel.de im qualifizierten Alleinauftrag angeboten.

In ruhiger und familienfreundlicher Lage von Ladeburg, einem idyllischen Ortsteil von Bernau bei Berlin, steht dieses Einfamilienhaus zum Verkauf. Ursprünglich im Jahr 1932 erbaut und 1972 um einen Anbau erweitert, bietet das Haus auf zwei Etagen eine großzügige Raumaufteilung. Mit einem weitläufigen Grundstück von ca. 621 m² eröffnet sich zusätzlich Raum für kreative Nutzungsmöglichkeiten.

Beim Betreten des Hauses gelangt man über eine verglaste Veranda in den Eingangsbereich. Die Veranda bietet nicht nur einen wettergeschützten Zugang, sondern auch Platz für eine gemütliche Sitzecke. Im Erdgeschoss befindet sich ein zentral gelegenes Wohnzimmer, das durch eine große Fensterfront viel Tageslicht erhält und einen schönen Ausblick auf den Garten bietet. Die gegenüberliegende Wohnküche bietet viel Platz und Potenzial, um sie als zentralen Ort für die Familie zu gestalten.

Neben diesen Räumen umfasst das Erdgeschoss außerdem ein Kinderzimmer, ein Arbeitszimmer und ein Durchgangszimmer, die flexibel genutzt werden können. Das Badezimmer ist gefliest und verfügt über eine Dusch-Wannen-Kombination sowie einem WC / WB. Eine geräumige Waschküche mit ausreichend Stauraum bietet direkten Zugang zum Garten und rundet das Platzangebot im Erdgeschoss ab.

Das Dachgeschoss bildet den privaten Rückzugsbereich des Hauses. Hier stehen ein Schlafzimmer und ein weiteres Kinderzimmer zur Verfügung.

Zusätzlich verfügt das Haus über einen 82 m² großen Keller. Dieser bietet zahlreiche Lager-, Werkstatt- und Hobbyräume, die viel Platz für unterschiedliche Nutzungen ermöglichen. Egal ob für Heimwerkerarbeiten, als Hobbybereich oder zur Aufbewahrung – hier sind vielseitige Möglichkeiten gegeben. Im Keller befindet sich zudem die Gaszentralheizung. Diese wird von einer Solarthermieanlage unterstützt.

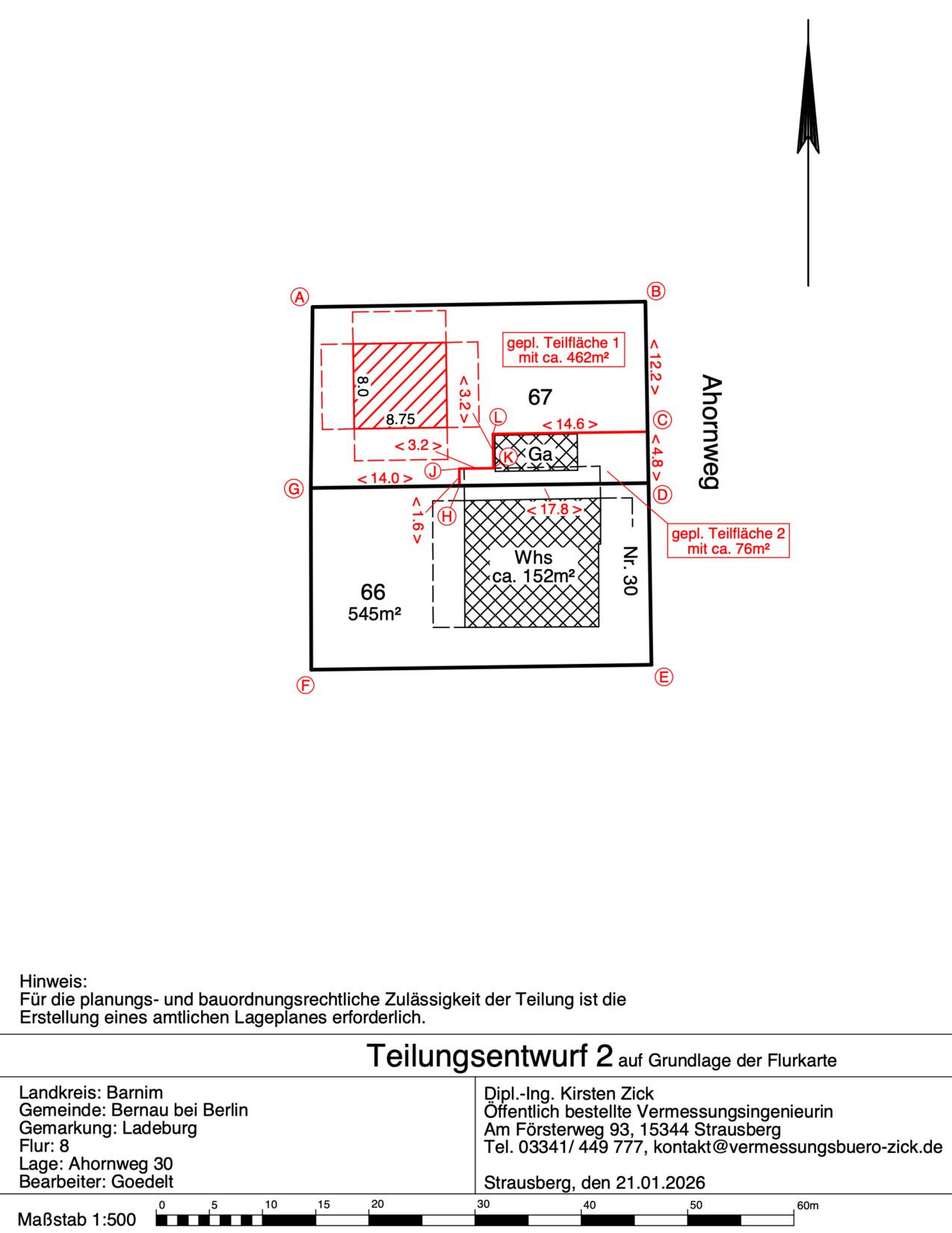
Das benachbarte Flurstück 66 wird derzeit neu vermessen. Im Rahmen dieser Vermessung wird eine geplante Teilfläche von ca. 76 m² dem hier angebotenen Grundstück zugeschlagen und mit an den Käufer veräußert (siehe Teilungsplan). Diese Teilfläche ist bereits in der angegebenen Gesamtgrundstücksgröße von ca. 621 m² berücksichtigt. Die Kosten der Vermessung werden vom Käufer des Nachbargrundstücks getragen.

Aufgrund der laufenden Vermessung kann die endgültige Grundstücksgröße geringfügig von der angegebenen Fläche abweichen. Maßgeblich ist das Ergebnis der amtlichen Vermessung. Etwaige Flächenabweichungen werden zwischen den Käufern der beiden betroffenen Grundstücke durch eine entsprechende Ausgleichszahlung geregelt. Die Berechnung der Ausgleichszahlung erfolgt auf Grundlage des aktuellen Bodenrichtwerts für Bauland aus dem Jahr 2025 in Höhe von 340,– EUR pro m².

Das Haus bietet eine solide Grundlage für individuelle Wohnträume und überzeugt durch seine großzügige Raumaufteilung, die idyllische Lage und das weitläufige Grundstück mit Entwicklungspotenzial. Ob als neues Zuhause für eine Familie mit großem Platzbedarf oder als spannendes Projekt für Bauinteressierte – hier sind viele Möglichkeiten gegeben. Für weitere Informationen oder einen Besichtigungstermin stehen wir Ihnen gerne zur Verfügung.

Ausstattung

Die Highlights des Hauses sind:
• Einfamilienhaus mit Anbau: Ursprünglich Baujahr 1932, Erweiterung im Jahr 1972
• Großzügige Wohnfläche: Helle und vielseitig nutzbare Räume auf zwei Etagen
• Veranda mit Sitzgelegenheit: Verglaster Eingangsbereich mit Platz für eine gemütliche Sitzecke
• Wohnzimmer mit Gartenblick: Große Fensterfront sorgt für viel Tageslicht
• Praktische Raumaufteilung: Wohnküche, Kinderzimmer, Arbeitszimmer, Durchgangszimmer, gefliestes Badezimmer mit Dusch-Wannen-Kombination
• Große Waschküche: Direkter Zugang zum Garten, ideal für Haushaltszwecke
• Ausgebautes Dachgeschoss: Schlafzimmer, Kinderzimmer und zusätzlicher Flurbereich
• Geräumiger Keller: 82 m² Nutzfläche mit Lager-, Werkstatt- und Hobbyräumen
• Weitläufiges Grundstück: 621 m² mit Garage

Lage

Ladeburg, ein Ortsteil von Bernau bei Berlin, vereint naturnahe Erholung mit einer ausgezeichneten Infrastruktur und zählt zu den begehrten Wohngegenden in der Region. Eingebettet in eine grüne Umgebung, bietet Ladeburg eine ruhige und entspannte Lebensqualität, die besonders Familien, Naturliebhaber und Ruhesuchende anspricht.

Die Umgebung von Ladeburg zeichnet sich durch weitläufige Wiesen, Felder und Wälder aus, die zu Spaziergängen, Radtouren und weiteren Freizeitaktivitäten im Freien einladen. Der nahegelegene Naturpark Barnim, ein geschütztes Naherholungsgebiet, erweitert die Möglichkeiten zur Entspannung und Erholung in der Natur.

Neben seiner naturnahen Lage überzeugt Ladeburg durch seine Nähe zur Hauptstadt, wodurch Ladeburg sich auch ideal für Pendler eignet. Die hervorragende Verkehrsanbindung über die Autobahn A11 sowie die S-Bahn in Bernau ermöglicht eine bequeme und schnelle Erreichbarkeit des Berliner Stadtzentrums.

Gleichzeitig bietet Ladeburg eine sehr gute lokale Infrastruktur. Einkaufsmöglichkeiten, ärztliche Versorgung und kulturelle Angebote sind im nahegelegenen Bernau umfangreich vorhanden. Kindergärten und Schulen in Ladeburg und Bernau gewährleisten eine familienfreundliche Umgebung. Darüber hinaus sorgen ein reges Vereinsleben und zahlreiche Freizeitangebote für eine hohe Lebensqualität und ein aktives Gemeinschaftsgefühl.

Sonstiges

Energieausweisangaben:
• Energieausweisart: Verbrauchsausweis
• Energieverbrauch: 151,6 kWh/(m² a)
• Energieklasse: E
• Wesentlicher Energieträger: Erdgas
• Baujahr lt. Energieausweis: 1932
• Gültig bis: 09.07.2034
• Energieverbrauch Warmwasser ist enthalten

Erschließung auf im Haus:
• Strom
• Stadtwasser
• Abwasserkanalisation
• Erdgas
• Telefon

Hinweise:
Die Immobilie kann nach Vereinbarung übernommen werden.

Besichtigung:
Für eine persönliche Besichtigung bitten wir um eine erste Kontaktaufnahme per E-Mail an info@immozippel.de mit Ihren kompletten Kontaktdaten (Name, Wohnanschrift, Telefonnummer).

Sie haben weitere Fragen?
E-Mail: fabian@immozippel.de
Mobil: 0152 - 343 555 44
Mo. - So. von 09:00 Uhr - 21:00 Uhr

Provisionshinweis:
Dieses Angebot ist für Sie als Käufer provisionspflichtig. Sollten Sie das Objekt erwerben, haben Sie an uns eine Maklerprovision in Höhe von 3,57 %des Kaufpreises inklusive Mehrwertsteuer zu zahlen. In gleicher Höhe werden wir auch vom Verkäufer vergütet (§ 656 c BGB).

Rechtshinweis:
Alle zum Objekt gemachten Angaben beruhen auf den Angaben Dritter. Der Makler übernimmt für deren Richtigkeit keine Gewährleistung. Dieses Exposé ist nur für Sie persönlich bestimmt. Eine Weitergabe an Dritte ist an unsere ausdrückliche Zustimmung gebunden und unterbindet nicht unseren Provisionsanspruch bei Zustandekommen eines Vertrages. Alle Gespräche sind über unser Büro zu führen. Bei Zuwiderhandlung behalten wir uns Schadenersatz bis zur Höhe der Provisionsansprüche ausdrücklich vor. Dieses Angebot ist freibleibend, Zwischenverkauf vorbehalten.

Wir weisen vorsorglich darauf hin, dass Käufer laut dem GEG-2020 zur Energieberatung verpflichtet sind. Für weitere Informationen sprechen Sie uns gerne an.

Ansprechpartner

B.A. Fabian Zippel
B.A. Fabian Zippel

Telefon: 030 / 55 15 67 03
Mobil: ‭0152 / 34 35 55 44‬
E-Mail: fabian@immozippel.de

Ihr Exposé

Fordern Sie jetzt unverbindlich Ihr Exposé an: