Menu
Auszeichnungen Siegel 2023
Immobilien-Preisrechner

Wohnen auf gr. Grundstück in Eggersdorf: EFH, 4 Zi., Kü, Bad, Gar., Ausbaureserve, 966 m² Grundstück

Jetzt exposé anfordern

Objektangaben

Exposé-Nr

ET2543

Objektart

Einfamilienhaus

Ort

15345 Petershagen-Eggersdorf / Eggersdorf

Kaufpreis

-

Provision

-

Grundstück

Nutzungsart

Wohnen

Grundstück

ca. 966,00 m²

Erschließung

Erschlossen

Erschliessungsdetails

Abwasserkanalisation, Erdgas, Stadtwasser, Strom, Telefon

Flächen

Wohnfläche

ca. 93,00 m²

Details

Zimmer

4

Anzahl Badezimmer

1

Zustand

Objektzustand

renovierungsbedürftig

Qualität der Ausstattung

einfach

Verfügbar ab

-

Ausstattung

Einbauküche

Ja

Badezimmer

Ja

Keller

Ja

Garten

Ja

Kamin

Ja

Energieausweis

Energieausweis

liegt vor

Energieausweistyp

Verbrauchsausweis

Energie-Verbrauchs-Kennwert

200,2 kWh/(m²*a)

Energie-Effizienz-Klasse

G

Baujahr

1930

Baujahr Anlagentechnik

2015

Wesentlicher Energieträger

Gas

Heizungsart

Zentralheizung

Mit Warmwasser

ja

Gültig bis

11.06.2034

Endenergieverbrauch:200,2 kWh/(m²*a)
A+
A
B
C
D
E
F
G
H
0
25
50
75
100
125
150
175
200
225
250+

Stellplatz

Stellplatztyp

Garage

Objektbeschreibung

Dieses Einfamilienhaus wird Ihnen von immozippel.de im qualifizierten Alleinauftrag angeboten.

Das massive Einfamilienhaus wurde ca.1930 auf einem 966 m² großen Wohnbaugrundstück an einer befestigten Straße errichtet und ca.1983 durch einen eingeschossigen Anbau wesentlich erweitert. Das Haus wurde in den letzten Jahren teilweise modernisiert. Der große Garten bietet viel Platz für Freizeit und Erholung.

Es steht Ihnen im Haus eine ca.93 m² große Wohnfläche zur Verfügung, die sich wie folgt aufteilt:

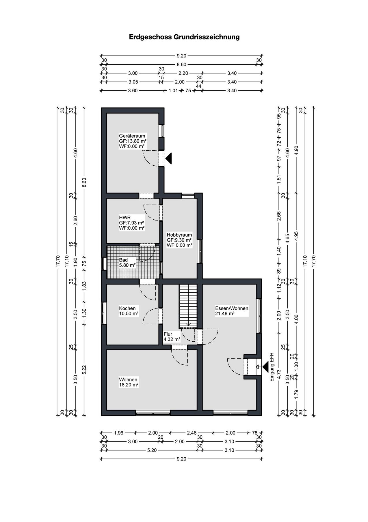
ERDGESCHOSS:
Von der Hauseingangstür gelangen Sie in eine geräumige Diele mit sonnigem Wohn-, Essbereich und Zugang zum Mittelflur, der die Räumlichkeiten im Erdgeschoss des Hauses miteinander verbindet.
Vom Mittelflur besteht Zugang zum großen hellen Wohnzimmer mit Panoramafenster.
Weiterhin erreichen vom Mittelflur die Wohnküche und die Treppe zum Dachgeschoss. Die praktische Küche mit Essbereich macht diesen Raum zu einem funktionalen und gemütlichen Ort.
Direkt rechts in der Küche besteht Zugang zum kleinen Duschbad mit Waschbecken und WC.
Vom Duschbad gelangen Sie in den Anbau mit einem Hauswirtschaftsraum, einem Hobbyraum (Ausbaureserve) und in einen Lagerraum für Gartengeräte. Vom Lageraum führt eine Tür in den Garten.

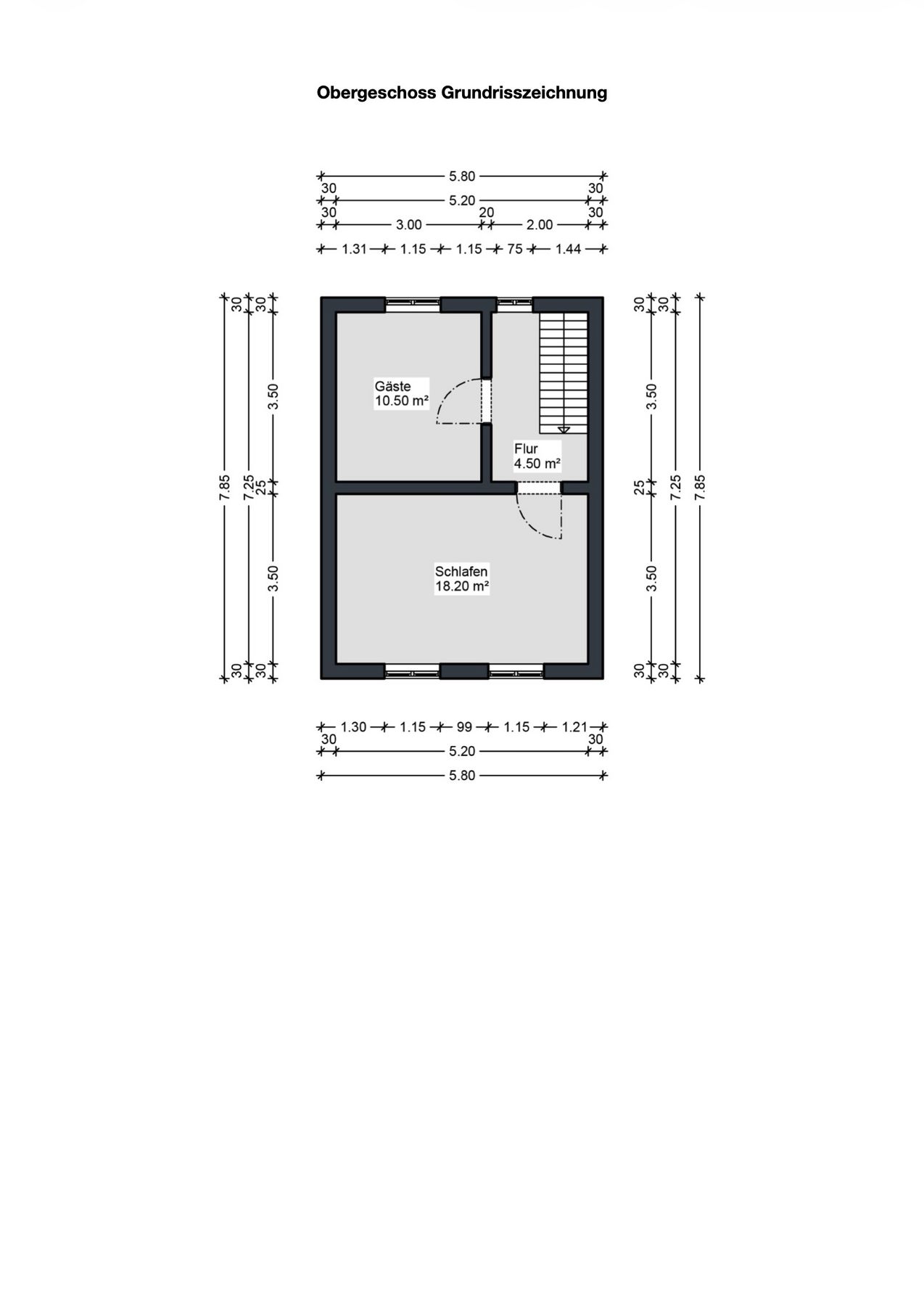
DACHGESCHOSS:
Vom Mittelflur gelangen Sie über eine Holztreppe in das ausgebaute Dachgeschoss. Hier erreichen Sie über eine Mitteldiele ein Gästezimmer und ein geräumiges Schlafzimmer. Die Dielenböden in den Wohnräumen sind mit Textilbelag ausgelegt.

Die Fenster des Wohnhauses sind teilweise mit Rollläden ausgestattet, die für zusätzlichen Komfort und Sicherheit sorgen. Die helle Fassade und die moderne Dacheindeckung bieten eine anspruchsvolle Außenansicht.

Ausstattung

Das Einfamilienhaus wird über moderne Gas-Zentralheizungsanlage mit Warmwasserbereitung (Bj.2015) beheizt.

Die Highlights des Hauses sind:
• Massives Einfamilienhaus, Bj.ca.1930 mit Anbau von ca.1983
• Gepflegtes 966 m² großes Grundstück mit großer Rasenfläche
• EG: große Eingangsdiele mit Wohn,- Essbereich
• EG: Wohnküche mit Möbeln ausgestattet
• EG: helles Wohnzimmer mit Panoramafenster
• EG: Duschbad mit WB und WC
• EG: Hobbyraum als Ausbaureserve für 1 weiteres Zimmer
• DG: Gästezimmer und Schlafzimmer
• massives Garagengebäude mit Rolltor und Hobbywerkstattraum
• schöner Garten für Hobby und Entspannung

Hinweis:
Die Grundrisse vom Haus sowie weiterführende Informationen zum Angebot lassen wir Ihnen bei Interesse gern zukommen.
Wir bitten um eine erste Kontaktaufnahme per E-Mail mit Ihren kompletten Kontaktdaten und Telefonnummer. Gern können Sie sich von der Attraktivität des Angebotes im Rahmen einer persönlich geführten Besichtigung überzeugen.

Lage

Petershagen-Eggersdorf ist ein sogenanntes Doppeldorf im Großkreis Märkisch-Oderland. Die angebotene Doppelhaushälfte befindet sich in Eggersdorf. Die Gemeinde Petershagen/Eggersdorf ist über das S-Bahnnetz mit Berlin verbunden, über welches der Alexanderplatz oder der Hauptbahnhof direkt zu erreichen sind.
Der nächste S-Bahnhof Petershagen-Nord ist nur ca. 1,6 km vom Haus entfernt. Die Anbindung an das öffentliche Verkehrsnetz wird durch die fußläufig erreichbare Bushaltestelle gewährleistet. Von hier aus gelangen Sie mir dem Bus in wenigen Minuten zum S-Bahnhof Petershagen-Nord.
Geschäfte für den täglichen Bedarf, Ärzte und Apotheken, Schulen mehrerer Stufen und Kitas sind vorhanden. Ein natürlicher Schatz in der Gemeinde Petershagen/Eggersdorf ist der Bötzsee, welcher unproblematisch umrundet werden kann. Die Strandbäder am Bötzsee, Stienitzsee und Straussee in waldreicher Umgebung bieten große Badefreude und Platz zur Erholung.
Dies könnte bald ein Ort für Sie und Ihrer Familie zum Wohlfühlen sein.

Sonstiges

Modernisierungsaufstellung:
• Fassadenanstrich
• Dacheindeckung mit glasierten Ziegeln
• neue Fenster mit Isolierverglasung
• Gas- Heizungstherme (2015)
• neuer Matallzaun mit Gartentür und Toranlage

Energieausweisangaben:
• Energieausweisart: Verbrauchsausweis
• Energieverbrauch: 200,2 kWh/(m² a)
• Energieklasse: G
• Wesentlicher Energieträger: Erdgas
• Baujahr lt. Energieausweis: 1930/ Anbau 1983
• Gültig bis: 11.06.2034
• Energieverbrauch Warmwasser ist enthalten

Erschließung im Haus:
• Strom
• Stadtwasser
• Abwasserkanalisation
• Erdgas
• Telefon
Die Straße ist befestigt.

Hinweise:
Die Immobilie nach Vereinbarung übernommen werden.

Besichtigung:
Für eine persönliche Besichtigung bitten wir um eine erste Kontaktaufnahme per E-Mail an info@immozippel.de mit Ihren kompletten Kontaktdaten (Name, Wohnanschrift, Telefonnummer).

Sie haben weitere Fragen?
Email: info@immozippel.de

- Mobil: 0172 - 60 36 92 5

Mo. - So. von 09:00 Uhr - 21:00 Uhr

Provisionshinweis:
Dieses Angebot ist für Sie als Käufer provisionspflichtig. Sollten Sie das Objekt erwerben, haben Sie an uns eine Maklerprovision in Höhe von 3,57 % des Kaufpreises inklusive Mehrwertsteuer zu zahlen.
In gleicher Höhe werden wir auch vom Verkäufer vergütet. (§ 656 c BGB)

Rechtshinweis:
Alle zum Objekt gemachten Angaben beruhen auf den Angaben Dritter. Der Makler übernimmt für deren Richtigkeit keine Gewährleistung. Dieses Exposé ist nur für Sie persönlich bestimmt. Eine Weitergabe an Dritte ist an unsere ausdrückliche Zustimmung gebunden und unterbindet nicht unseren Provisionsanspruch bei Zustandekommen eines Vertrages. Alle Gespräche sind über unser Büro zuführen. Bei Zuwiderhandlung behalten wir uns Schadenersatz bis zur Höhe der Provisionsansprüche ausdrücklich vor. Dieses Angebot ist freibleibend, Zwischenverkauf vorbehalten.

Grundberatung:
Familiengründung, Trennung, Erbschaft oder Haustausch zur Verkleinerung. Jede Lebenssituation ist einzigartig und benötigt individuelle Antworten.

Hier kommt die umfassende Erfahrung aus 25 Jahren miterlebter Hürden und Stolperfallen ins Spiel. Wir helfen Ihnen wichtigen Vermögens­entscheidungen auf fundierter Wissensbasis zu treffen. Damit umgehen Sie Risiken und Vermögensschäden .

• Wie kann ich meine Immobilie schnellst möglich verkaufen?
• Wir wollen uns verkleinern: Wie koordiniert man den Verkauf unserer Immobilie mit dem Kauf der neuen Immobilie?
• Wie hoch ist der maximale Verkaufspreis?
• Welche Verkaufspreise haben Immobilien in meiner Nachbarschaft erzielt?
• Wie löse ich verfahrene Situationen auf z.B. bei Scheidungen oder Erbengemeinschaften?
• Geht auch ein Teilverkauf?
• Wie läuft ein Verkauf ab? Vom Exposé bis zum Notartermin und zur Übergabe.
• Muss ich Grundstück und Immobilie beräumen?

Schon das erste Beratungsgespräch bringt Eigentümern häufig sofort eine Bereicherung und großen Erkenntnisgewinn. Nutzen sie unser Angebot zur kostenlosen und unverbindlichen Grundberatung und umgehen Sie Stolperfallen bei Ihrer Vermögensentscheidung. Fragen Sie uns einfach. Wir freuen uns auf Sie!

Und freundlich grüßt der Immozippel!

Ansprechpartner

Dipl.-Vw. Karsten Zippel
Dipl.-Vw. Karsten Zippel

Telefon: 030 / 55 15 67 03
Mobil: 0172 / 603 69 25
E-Mail: karsten@immozippel.de

Ihr Exposé

Fordern Sie jetzt unverbindlich Ihr Exposé an:

Haus kaufen in Berlin – Finden Sie Ihr Traumhaus mit uns

Berlin, die pulsierende Hauptstadt Deutschlands, bietet eine einzigartige Mischung aus Kultur, Geschichte und modernen Lebensstilen. Wenn Sie ein Haus in Berlin kaufen möchten, sind Sie bei uns genau richtig. Als erfahrene Immobilienmakler stehen wir Ihnen zur Seite, um Ihr Traumhaus in einer der facettenreichsten Städte Europas zu finden.

Warum ein Haus in Berlin kaufen?

  • Vielfältige Wohnlagen: Von den ruhigen Vororten wie Berlin-Biesdorf bis hin zu urbanen Hotspots in Mitte oder Köpenick – Berlin hat für jeden Geschmack etwas zu bieten.
  • Wertsteigerung: Berlin gehört zu den dynamischsten Immobilienmärkten Europas. Ein Hauskauf hier ist nicht nur ein Schritt in Richtung Eigenheim, sondern auch eine solide Investition in die Zukunft.
  • Lebensqualität: Parks, Kultur, internationale Gastronomie und eine exzellente Infrastruktur machen Berlin zu einer der lebenswertesten Städte der Welt.

Unsere Expertise – Ihr Vorteil

Wir kennen den Berliner Immobilienmarkt wie unsere Westentasche und unterstützen Sie bei jedem Schritt des Kaufprozesses:

  • Individuelle Beratung: Ihre Wünsche und Bedürfnisse stehen bei uns an erster Stelle.
  • Umfangreiches Angebot: Von charmanten Einfamilienhäusern, Doppelhaushälften, Reihenhäusen, Mehrfamilienhäusern bis hin zu exklusiven Villen – bei uns finden Sie das passende Objekt.
  • Transparenz und Sicherheit: Wir begleiten Sie bei allen rechtlichen und finanziellen Aspekten, damit Ihr Hauskauf in Berlin reibungslos verläuft.

Beliebte Wohngebiete für Hauskäufer in Berlin

  • Biesdorf, Kaulsdorf, Mahlsdorf: Familienfreundlich, ruhig und mit guter Anbindung an die Innenstadt.
  • Köpenick: Für alle, die das grüne Leben mit Nähe zur Natur schätzen.
  • Prenzlauer Berg: Urban, lebendig und beliebt bei jungen Familien.
  • Karlshorst: Elegante Wohngegend mit historischen Villen und moderner Architektur.

Kontaktieren Sie uns für Ihr Traumhaus in Berlin

Der Weg zu Ihrem neuen Zuhause beginnt mit einem Gespräch. Kontaktieren Sie uns noch heute und lassen Sie uns gemeinsam Ihr Traumhaus in Berlin kaufen! Unser erfahrenes Team steht bereit, um Ihre Fragen zu beantworten und Sie bei Ihrem Immobilienkauf bestmöglich zu unterstützen.

Haus kaufen Berlin – Mit uns an Ihrer Seite wird Ihr Traum Wirklichkeit!