Menu
Auszeichnungen Siegel 2023
Immobilien-Preisrechner

Notartermin geplant: Wohnbaugrundstück in Ladeburg: ca. 462 m² Grst.,

Jetzt exposé anfordern

Objektangaben

Exposé-Nr

LA2629

Objektart

Grundstück

Nutzungsart

Wohnen

Ort

16321 Ladeburg

Kaufpreis

-

Verfügbar ab

-

Grundstück

Nutzungsart

Wohnen

Erschließung

Teilerschlossen

Erschliessungsdetails

Abwasserkanalisation

Bebaubar nach

Wie Nachbarbebauung

Kurzfristig bebaubar

Ja

Flächen

Objektbeschreibung

Dieses Baugrundstück wird Ihnen von Immozippel im qualifizierten Alleinauftrag angeboten.

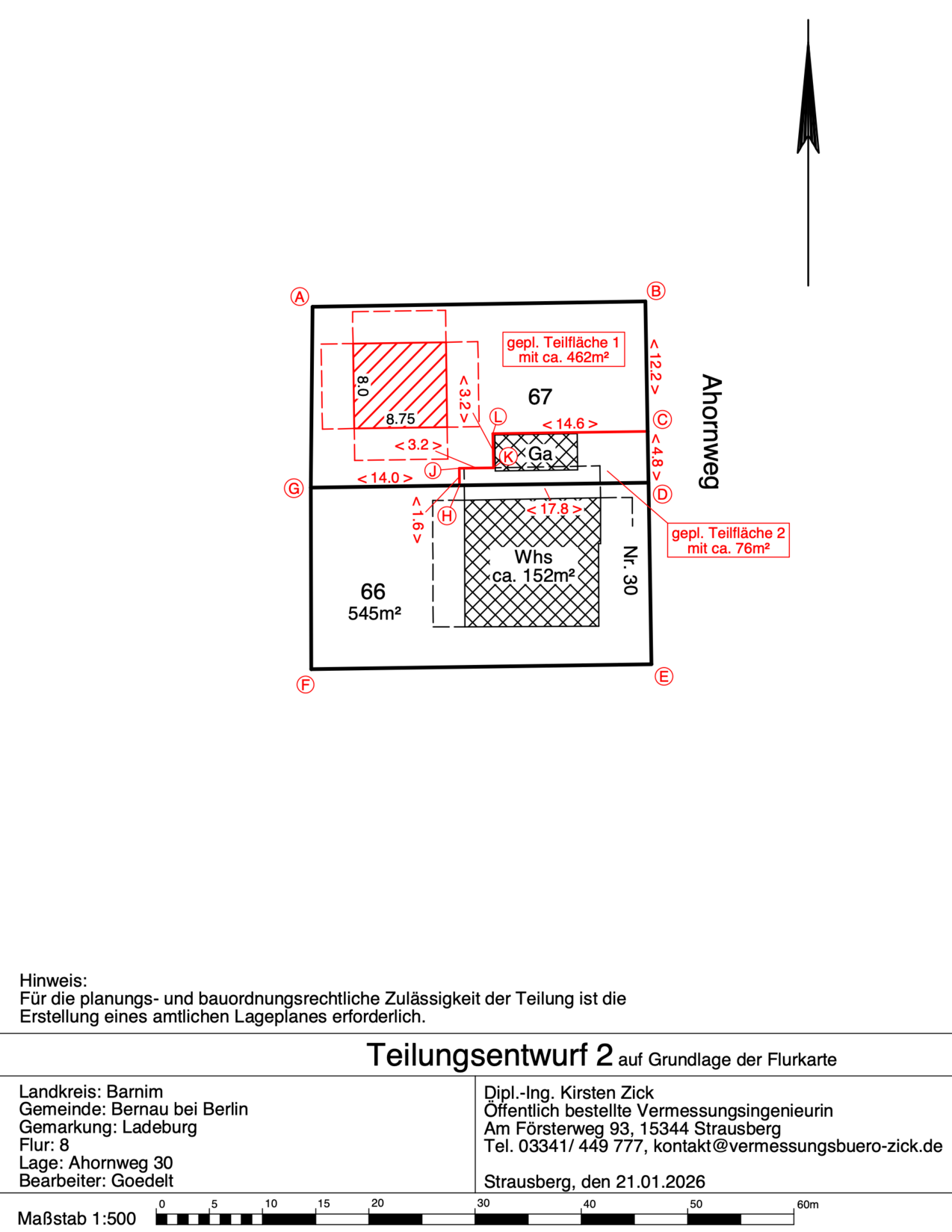
Es handelt sich um ein gepflegtes Wohnbaugrundstück mit einer künftig noch zu vermessenden Größe von ca. 462 m² in angenehmer Lage an einer befestigten Straße. Die Straßenfront beträgt ca. 17 Meter und bietet damit gute Voraussetzungen für eine zeitgemäße Bebauung.

Besonders wichtig für Kaufinteressenten: Die Flurkarte zeigt das derzeit bestehende Flurstück in seiner aktuellen Form, rot umrandet dargestellt. Der vorliegende Teilungsentwurf veranschaulicht hingegen, wie das angebotene Baugrundstück künftig vermessen und als eigenständige Teilfläche mit ca. 462 m² gebildet werden soll.

Nach Auskunft des zuständigen Bauamtes Bernau kann das Grundstück gemäß § 34 BauGB entsprechend der Umgebungsbebauung bebaut werden. Damit orientiert sich die mögliche Bebauung an Art und Maß der näheren Nachbarschaft. Konkrete Bauvorhaben sind vom Käufer mit dem zuständigen Bauamt individuell abzustimmen.

Bitte beachten Sie, dass Abriss-, Baumfäll- und Vermessungskosten vom Käufer zu tragen sind. Da sich das Gebäude des Nachbarn (Hausnummer 30) im Grenzbereich befindet, ist zur rechtlichen Sicherung eine Grunddienstbarkeit in Form eines Überbaurechts im Grundbuch einzutragen. Der vorliegende Teilungsentwurf bildet hierfür sowie für die geplante Neuvermessung eine wichtige Grundlage.

Lage

Ladeburg, ein Ortsteil von Bernau bei Berlin, vereint naturnahe Erholung mit einer ausgezeichneten Infrastruktur und zählt zu den begehrten Wohngegenden in der Region. Eingebettet in eine grüne Umgebung, bietet Ladeburg eine ruhige und entspannte Lebensqualität, die besonders Familien, Naturliebhaber und Ruhesuchende anspricht.

Die Umgebung von Ladeburg zeichnet sich durch weitläufige Wiesen, Felder und Wälder aus, die zu Spaziergängen, Radtouren und weiteren Freizeitaktivitäten im Freien einladen. Der nahegelegene Naturpark Barnim, ein geschütztes Naherholungsgebiet, erweitert die Möglichkeiten zur Entspannung und Erholung in der Natur.

Neben seiner naturnahen Lage überzeugt Ladeburg durch seine Nähe zur Hauptstadt, wodurch Ladeburg sich auch ideal für Pendler eignet. Die hervorragende Verkehrsanbindung über die Autobahn A11 sowie die S-Bahn in Bernau ermöglicht eine bequeme und schnelle Erreichbarkeit des Berliner Stadtzentrums.

Gleichzeitig bietet Ladeburg eine sehr gute lokale Infrastruktur. Einkaufsmöglichkeiten, ärztliche Versorgung und kulturelle Angebote sind im nahegelegenen Bernau umfangreich vorhanden. Kindergärten und Schulen in Ladeburg und Bernau gewährleisten eine familienfreundliche Umgebung. Darüber hinaus sorgen ein reges Vereinsleben und zahlreiche Freizeitangebote für eine hohe Lebensqualität und ein aktives Gemeinschaftsgefühl.

Sonstiges

Erschließung auf dem Grundstück:
• Abwasserkanalisation

Erschließung in der Straße:
• Strom
• Stadtwasser
• Abwasserkanalisation
• Erdgas
• Telefon

Hinweise:
Das Baugrundstück kann kurzfristig übernommen werden.

Besichtigung:
Für eine persönliche Besichtigung bitten wir um eine erste Kontaktaufnahme per E-Mail an fabian@immozippel.de mit Ihren kompletten Kontaktdaten (Name, Wohnanschrift, Telefonnummer).

Sie haben weitere Fragen?
E-Mail: fabian@immozippel.de
Mobil: 0152 - 343 555 44
Mo. - So. von 09:00 Uhr - 21:00 Uhr

Provisionshinweis:
Dieses Angebot ist für Sie als Käufer provisionspflichtig. Sollten Sie das Objekt erwerben, haben Sie an uns eine Maklerprovision in Höhe von 3,57 %des Kaufpreises inklusive Mehrwertsteuer zu zahlen. In gleicher Höhe werden wir auch vom Verkäufer vergütet (§ 656 c BGB).

Rechtshinweis:
Alle zum Objekt gemachten Angaben beruhen auf den Angaben Dritter. Der Makler übernimmt für deren Richtigkeit keine Gewährleistung. Dieses Exposé ist nur für Sie persönlich bestimmt. Eine Weitergabe an Dritte ist an unsere ausdrückliche Zustimmung gebunden und unterbindet nicht unseren Provisionsanspruch bei Zustandekommen eines Vertrages. Alle Gespräche sind über unser Büro zu führen. Bei Zuwiderhandlung behalten wir uns Schadenersatz bis zur Höhe der Provisionsansprüche ausdrücklich vor. Dieses Angebot ist freibleibend, Zwischenverkauf vorbehalten.

Ansprechpartner

B.A. Fabian Zippel
B.A. Fabian Zippel

Telefon: 030 / 55 15 67 03
Mobil: ‭0152 / 34 35 55 44‬
E-Mail: fabian@immozippel.de

Ihr Exposé

Fordern Sie jetzt unverbindlich Ihr Exposé an: